インプレストレジデンス上野 ジ アーキテクト

お気に入り

インプレストレジデンス上野 ジ アーキテクト

お気に入り
/
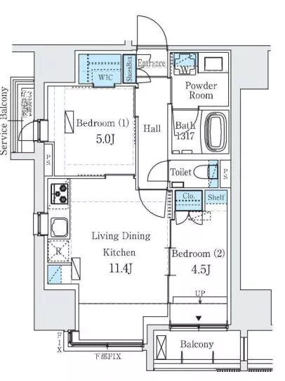
間取り

インプレストレジデンス上野 ジ アーキテクト 10階

賃料 要問合せ(※) 管理費
敷金 1ヶ月 礼金 0ヶ月
間取り 2LDK 面積 50.02㎡
階数 10階 状態 要問合せ(※)
入居 要相談 更新料 新賃料の1ヶ月分
諸費用 取引態様 媒介
設備 新築、オートロック、宅配BOX、コンビニ近、BS・CS、CATV、光ファイバー、専用ゴミ置場、防犯カメラ、TVモニター付インターホン、東京大学自転車圏、礼金なし、ペット可、エレベーター、10階以上、二面採光、コンロ二口以上、ガスキッチン、システムキッチン、ウォークインクローゼット、エアコン、フローリング、独立洗面台、追い焚き機能、浴室乾燥、ウォシュレット、バストイレ別、室内洗濯機置場、収納、角部屋、2人入居可、保証会社利用、法人契約相談可

物件概要

物件名インプレストレジデンス上野 ジ アーキテクト
所在地東京都台東区東上野5-4-15
最寄駅 東京メトロ銀座線 稲荷町駅 徒歩2分
JR山手線 上野駅 徒歩6分
都営大江戸線 新御徒町駅 徒歩8分
学区 構造RC
階数地上15階建て  築年月2017年09月
駐車場
備考 詳細閲覧ありがとうございます。最新の空室の確認、内覧のご予約はメール・電話にてお問い合わせください。 文京区の賃貸マンション・賃貸アパートはベステックスにおまかせください!
問合番号5601
更新日2017/10/16

このお部屋について

インプレストレジデンス上野 ジ アーキテクトの10階部分、2LDKのファミリータイプのお部屋です!

専有面積50.02㎡。LDKは11.4帖、洋室はそれぞれ5.0帖・4.5帖となっております。

LDKは正方形の綺麗な形をしており、用途にあわせて4.5帖の洋室とセットでお使い頂けます。

キッチンはガス3口システムキッチンでお料理も捗ります!キッチン自体の収納スペースも豊富で非常に使い勝手も良好です♪また、小窓も完備されておりますので、空気の入れ替えも問題ありません。

洋室にはそれぞれクローゼットも付いており、5帖の洋室には
ウォークインクローゼットがございます。
水まわりに関しては、もちろん浴室・トイレ・洗面はセパレート。
トイレには温水洗浄機能付きで、清潔・快適♪
脱衣所には独立洗面台があり、その先の浴室には追い焚き機能&浴室乾燥機を完備しています!
浴室は1317サイズで湯船に浸かりながらゆったりとおつくろぎ頂けます。

ペット飼育も相談可能。

マルチアクセスの好立地、ハイグレードマンション!是非お問い合わせください!
LINEでお問い合わせはこちら
LINE問合せ

掲載情報について

※随時更新を心がけておりますが、掲載している物件が万が一成約している場合もございますので予めご了承下さいませ。
※駐車場・駐輪場・バイク置場の空き状況についてはお問い合わせ下さい。
※ペット飼育やSOHO利用・楽器使用の可否に関しては、建物の管理規約で可能になっていても、お部屋の所有者様によって禁止の場合もございますので御注意下さい。
詳細はメールやお電話にてスタッフまでご相談下さい。

インプレストレジデンス上野 ジ アーキテクトの周辺地図

似た条件の物件

最近見た物件

物件を探す

エリアから探す エリアから探す
駅から探す 駅から探す
学区から探す 学区から探す