アイル文京音羽 08/19
賃料
87,000円
管理費
13,000円
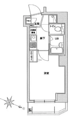
間取り
1K
| 所在地 | 文京区音羽1-25-13 | ||
|---|---|---|---|
| 交通 | 東京メトロ有楽町線 江戸川橋駅 徒歩2分 東京メトロ丸ノ内線 茗荷谷駅 徒歩8分 |
||
| 構造 | RC | 規模 | 地上11階建て |
| 築年数 | 2004年02月築 | 専有面積 | 21.84㎡ |


































