WHARF文京茗荷谷
新着 12/13
賃料
149,000円
管理費
10,000円
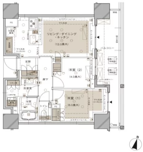
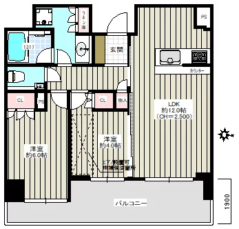
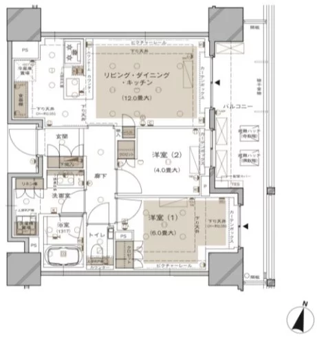
間取り
1DK
| 所在地 | 東京都文京区大塚4-12-8 | ||
|---|---|---|---|
| 交通 | 東京メトロ丸ノ内線 新大塚駅 徒歩9分 東京メトロ丸ノ内線 茗荷谷駅 徒歩10分 都営三田線 千石駅 徒歩15分 |
||
| 構造 | RC | 規模 | 地上10階建て |
| 築年数 | 2024年01月築 | 専有面積 | 30.93㎡ |


























































































