メインステージ早稲田
新着 12/14
賃料
83,000円
管理費
10,000円
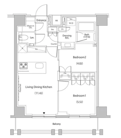
間取り
1K
| 所在地 | 文京区関口1-42-2 | ||
|---|---|---|---|
| 交通 | 東京メトロ東西線 早稲田駅 徒歩5分 東京メトロ有楽町線 江戸川橋駅 徒歩10分 都営都電荒川線 早稲田駅 徒歩7分 |
||
| 構造 | SRC | 規模 | 地上11階建て |
| 築年数 | 2000年03月築 | 専有面積 | 20.88㎡ |






























