【築浅】レジディア文京小石川(旧:エスタジオ小石川)
新着 12/13
賃料
130,000円~234,000円
管理費
10,000円~25,000円
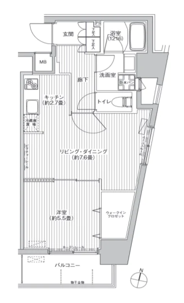
間取り
1R~2DK
| 所在地 | 東京都文京区小石川1-28-14 | ||
|---|---|---|---|
| 交通 | |||
| 構造 | RC | 規模 | 地上6階建て 地下1階 |
| 築年数 | 2018年02月築 | 専有面積 | 22.63㎡~51.30㎡ |








_id3284.webp)



























