【千石駅徒歩5分】フォレンツタワー文京千石 04/18
賃料
188,000円
管理費
12,000円
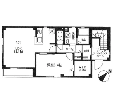
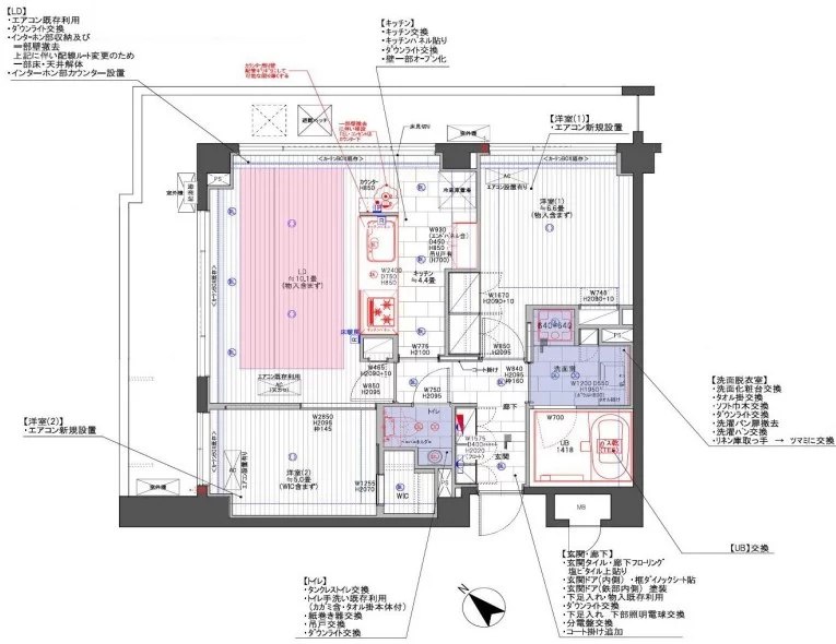
間取り
2DK
| 所在地 | 東京都文京区千石3-41-18 | ||
|---|---|---|---|
| 交通 | 都営三田線 千石駅 徒歩5分 JR山手線 巣鴨駅 徒歩15分 東京メトロ丸ノ内線 新大塚駅 徒歩16分 |
||
| 構造 | RC | 規模 | 地上14階建て 地下1階 |
| 築年数 | 2009年05月築 | 専有面積 | 50.08㎡ |





















_id2074.webp)






.webp)
