カーサスプレンディッド小石川
新着 12/12
賃料
215,000円
管理費
10,000円
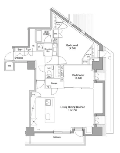
間取り
1LDK
| 所在地 | 東京都文京区小石川3-21-8 | ||
|---|---|---|---|
| 交通 | 後楽園駅 徒歩10分 後楽園駅 徒歩10分 春日駅 徒歩10分 |
||
| 構造 | RC | 規模 | 地上7階建て |
| 築年数 | 2016年07月築 | 専有面積 | 41.58㎡ |

































